2018
4 February
Planning application C2014/69942 for 2 x 4-bedroom houses expired, as work did not commence.
2017
4 November
Planning application C2017/77886 was refused for the main reason of height and bulk. You can read the full details of the reasons why here.
24 September
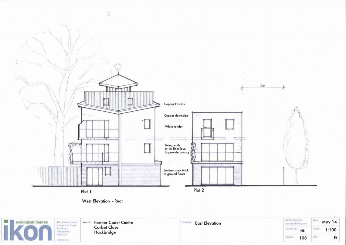
The Old Cadet Hut off of Corbet Close got planning approval in 2015 for two 4-bedroom detached houses. One 4-storey and one 3-storey. The planning application expires early next year (2018).
A new application C2017/77886 has been submitted for:-
- 1 x 4-bedroom detached house – 4 storeys
- 2 x 4-bedroom detached houses – 3 storeys
- 5 parking spaces
- The image below shows a dotted red line where the approved scheme’s second house would have been, now replaced by two houses.

The NDG is concerned by the density and height of this proposed development and the affect on existing residents with respect of loss of privacy and daylight.
2015
February 2015
On 4 February Planning application C2014/69942 was approved for 2 4-bedroom detached houses at Sutton Council’s Planning Committee. With 13 objections, the NDG and residents were very disappointed that their views were not taken into consideration.
2014
October 2014

Planning application C2014/69942 was later changed from 3 detached houses to 2 detached houses. There was no reason given by the developer for the changes.
August 2014

Planning application C2014/69942 was originally submitted for 3 detached houses.
- 2 x 3-storey four bedroom detached houses
- 1 x 4-storey four bedroom detached house

