
Please sign the petition to stop the demolition of our bridges.
Irrigation Bridge and 100 Acre Bridge in Hackbridge are due to be demolished by Network Rail in May 2016.
It seems like their future have been on hold since 1997, when they first wanted to demolish the bridges, stating there are no legal rights of access across them.
A campaign was led back in 2011 by local residents and groups and it appeared to have support by Sutton Council. Since then it has been quiet, until we heard the news of the demolition date.
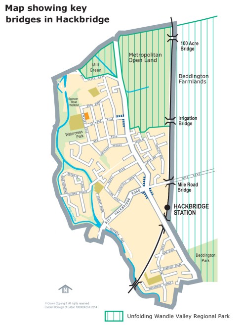
We want to save these bridges as they are part of our neighbourhood plan to provide vital pedestrian access to Beddington Farmlands, linking the green spaces in Hackbridge and Beddington which are part of the unfolding Wandle Valley Regional Park. The map below shows their strategic location.
If these bridges are demolished, it would take considerable fundraising and investment to try and provide some other sort of access across the railway line. Indeed we have been told in the past, that it could take more money to demolish them, than to make secure!
Sue Morgan, CEO of the Wandle Valley Regional Park has written to Councillor Ruth Dombey, Leader of Sutton Council, asking to work together to find a solution. Other local groups and residents are coming together to support the future of the bridges.

Network Rail were in positive discussions during 2011/2012 and the logjam may lie within LB Sutton.
There is arguably greater need and value in retaining Irrigation Bridge. Both bridges have elements missing and it is possible that one good victorian bridge can be sustained by a donor bridge (Hundred Acre)
Hundred Acre bridge is a few hundred yards south of a stepped footbridge completed within recent years.
The ‘possible’ transfer of ownership from Network Rail to LB Sutton was raised prior to 2011.
See (see link) Key Decision Report presented by the Strategic Director of Environment and Leisure dated 12 December 2011.
Click to access Irrigation%20BridgeExecReport_IrrHAB.pdf
It is understood that LB Sutton spent £20,000 in surveying the bridges with a view to retaining them.
Network Rail were in positive discussions and the logjam may lie within LB Sutton.
Bringing both parties together should be the focus in consultation with the various groups that share a collective interest. Save Irrigation Bridge, the resident butterflies, bats and wildlife.
Peter Lloyd, Hackbridge