Update – February 2021
Sutton Council have now approved this planning application. The Officer’s Report can be read here.
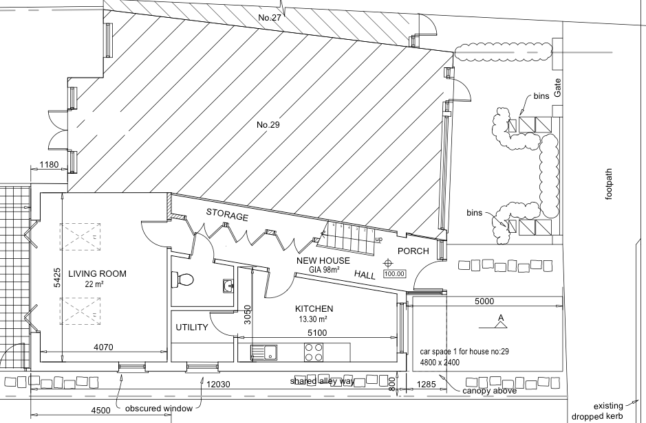
Planning application DM2020/00050 has been submitted for the erection of a 2-bedroom, two storey end of terrace house, attached to 29 Hackbridge House.


How to submit feedback
Deadline – 7 February 2020
Online:
Using the access information above, click on the ‘comment’ tab. If you already have an account with Sutton Council, use the login link, if not you can click on ‘register here’ to create an account.
By email: developmentcontrol@sutton.gov.uk
By post or hand deliver to:
Development Control
London Borough of Sutton
24 Denmark Road
Carshalton
Surrey SM5 2JG
Ensure you use the correct planning reference in your letter
The link won’t work
If the direct link to the planning application does not work, go to:
https://planningregister.sutton.gov.uk/online-applications/
and put in the planning application no. DM2020/00050
